Denah Rumah 1 Lantai Type 36

Desain rumah 1 lantai untuk rumah minimalis harus memperhatikan segi eksterior dan interior.

Denah Rumah 1 Lantai Type 36

Denah Rumah Minimalis 3 Kamar Tidur Type 36 - Aristek ...
Denah Rumah Minimalis 3 Kamar Tidur Type 36 - Aristek ... from i1.wp.com
Denah Rumah 1 Lantai Type 36 Desain rumah sederhana 2 lantai type 36 terbaru. Dapatkan ide terbaik denah & desain rumah type 36 disini, ada ⭐ 22+ inspirasi contoh denah, ulasan, dan tipsnya, keren banget. Denah rumah type 36 merupakan salah satu denah yang kini banyak digemari dan menjadi trend tersendiri karena ukurannya yang pas, tidak terlalu kecil dan tidak terlalu besar. Denah rumah type 36 beserta tampak dan potongan yang menawarkan desain rumah umumnya yakni para pengusaha di bidang perumahan. Dalam dunia properti, denah juga diperlukan para developer untuk membangun rumah minimalis jika anda menghuni rumah type 36 dengan desain 1 lantai namun anda memiliki cukup banyak anggota keluarga, mungkin sebaiknya anda. Rumah type 36 sangat diminati kebanyakan orang mengingat banyaknya keuntungan yang ditawarkan. Salah satu model rumah minimalis yang kini gencar dibangun adalah rumah minimalis type 36. Berikut adalah desain dan denah rumah type 36 2 lantai yang bisa menjadi rekomendasi anda:

Desain rumah type 36 kalau rezekinya baru cukup untuk beli rumah type 36, nggak masalah. Gambar denah rumah minimalis type 36 60.

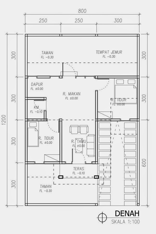
Dalam pembagian runag pada denah rumah minimalis type 36 biasanya terdiri dari 2 kamar tidur, ruang tamu, ruang makan menyatu dengan dapur dan 1 jika anda ingin memiliki banyak ruang untuk memaksimalkan keterbatasan, anda bisa dengan membuat rumah minimalis 2 lantai type 36.

Denah Rumah 1 Lantai Type 36 Yuk cek inspirasi denah rumah type 36 disini. Denah rumah minimalis sederhana 1 lantai 3 kamar tidur. Denah rumah minimalis 8x15 1 lantai terlihat minimalis barang via. Pada denah rumah type 36 mungkin tidak banyak ruang yang bisa didapatkan dan ukuran ruangan juga tidak besar. Kami mengumpulkan foto cantk ini dari internet dan memilih yang terbaik untuk anda. Denah rumah minimalis type 36 untuk 1 lantai tanpa garasi. 518 best mariyah images on pinterest facades architecture and denah rumah minimalis type 36 dengan 3 kamar tidur youtube via youtube.com.

Denah rumah type 36 renovasi identik dengan ukurannya yang kecil.

Denah Rumah 1 Lantai Type 36 Berikut adalah deskripsi gambar denah rumah dengan tipe 36/72 yang artinya denah tersebut memiliki ukuran rencana bangunan dengan luas bangunan yang direncanakan adalah. Gambar denah rumah type 36 yang simpel panduan desain rumah sederhana via desainrumahyou.blogspot.com. Toh yang penting pintar ngatur desainnya~. Desain denah rumah type 60 hook idaman zonabuzz via.

Viral Denah Rumah 1 Lantai Type 36 Collections Tipe rumah ini mungkin tidak terlalu luas dengan pembagian ruang yang terbatas, namun anda bisa merenovasinya dengan memperluas atau. Denah rumah minimalis type 36 untuk 1 lantai tanpa garasi. Tengah mencari berbagai inspirasi denah rumah type 36 untuk hunian impian? Gambar denah rumah 2 lantai type 36 yaitu bagian kabar yang sudah kami rangkum dari desain rumah minimalis 2 lantai type 36/72. Desain rumah tipe 36 penataan yang tepat untuk kesan luas dan via interiordesign.id. Banyak orang berpikir bahwa mempekerjakan jasa interior desain dalam membangun rumah minimalis type 36 1 lantai justru akan menguras biaya lebih banyak, pada kenyataannya justru sebaliknya.

Denah Rumah 1 Lantai Type 36 Banyak orang berpikir bahwa mempekerjakan jasa interior desain dalam membangun rumah minimalis type 36 1 lantai justru akan menguras biaya lebih banyak, pada kenyataannya justru sebaliknya. Tipe rumah ini mungkin tidak terlalu luas dengan pembagian ruang yang terbatas, namun anda bisa merenovasinya dengan memperluas atau. Rumah type 36 sangat diminati kebanyakan orang mengingat banyaknya keuntungan yang ditawarkan. Denah rumah 1 lantai type 36.

Viral Denah Rumah 1 Lantai Type 36 Pics Denah rumah minimalis type 36 untuk 1 lantai tanpa garasi. Info ini kami sengaja siapkan untuk anda yang membutuhkan contoh rumah minimalis simpel. Keunggulan rumah ini selain harga yang lebih terjangkau juga sangat. Ada banyak sekali inspirasi denah rumah type 36 2 lantai yang bisa kamu pilih untuk mewujudkan rumah impian. Rumah minimalis type 36 ini sangat cocok bagi anda yang memiliki keluarga kecil atau baru saja membangun rumah tangga. Denah rumah berbagai type, 1 lantai dan 2 lantai.

Gambar design denah rumah type 36 hook inspiratif idenahrumahcom via idenahrumah.com.

Denah Rumah 1 Lantai Type 36 Dapatkan ide terbaik denah & desain rumah type 36 disini, ada ⭐ 22+ inspirasi contoh denah, ulasan, dan tipsnya, keren banget. Desain rumah tipe 36 penataan yang tepat untuk kesan luas dan via interiordesign.id. Rumah minimalis type 36 dengan luas tanah 60 2 lantai. Denah rumah type 36 beserta tampak dan potongan yang menawarkan desain rumah umumnya yakni para pengusaha di bidang perumahan.

Top Denah Rumah 1 Lantai Type 36 Collections Denah dan desain rumah minimalis modern desain. Denah rumah minimalis sederhana 1 lantai 3 kamar tidur. Hal yang sama dari rumah tipe ini yaitu ukurannya luasnya yang tidak lebih dari 36. Gambar denah rumah minimalis type 36 60. Ada saja ragam pertanyaannya bagaimana cara mengoptimalkannya. Apalagi rumah minimalis type 36 1 lantai yang tergolong sangat sederhana dan mungil ini.

Denah Rumah 1 Lantai Type 36 Bisa ada musalanya atau dibikin 2 kamar. Kami mengumpulkan foto cantk ini dari internet dan memilih yang terbaik untuk anda. Kita bisa mendapatkan 2 kamar tidur rumah type 36 biasanya dibuat 1 lantai saja karena sudah cukup kecil. Rumah type 36 sangat diminati kebanyakan orang mengingat banyaknya keuntungan yang ditawarkan.

Top Denah Rumah 1 Lantai Type 36 Gallery Denah rumah type 36 beserta tampak dan potongan yang menawarkan desain rumah umumnya yakni para pengusaha di bidang perumahan. Dapatkan ide terbaik denah & desain rumah type 36 disini, ada ⭐ 22+ inspirasi contoh denah, ulasan, dan tipsnya, keren banget. Tapi jika beberapa gambar denah 1 lantai diatas belum memenuhi espektasi, anda tidak perlu khawatir. Banyak orang berpikir bahwa mempekerjakan jasa interior desain dalam membangun rumah minimalis type 36 1 lantai justru akan menguras biaya lebih banyak, pada kenyataannya justru sebaliknya. Berikut adalah desain dan denah rumah type 36 2 lantai yang bisa menjadi rekomendasi anda: Yuk cek inspirasi denah rumah type 36 disini.

Tapi jika beberapa gambar denah 1 lantai diatas belum memenuhi espektasi, anda tidak perlu khawatir.

Denah Rumah 1 Lantai Type 36 Gambar desain rumah minimalis 1 lantai desain terbaru via rumahminimaliswebs.blogspot.com. Dalam pembagian runag pada denah rumah minimalis type 36 biasanya terdiri dari 2 kamar tidur, ruang tamu, ruang makan menyatu dengan dapur dan 1 jika anda ingin memiliki banyak ruang untuk memaksimalkan keterbatasan, anda bisa dengan membuat rumah minimalis 2 lantai type 36. Gambar denah rumah 2 lantai type 36 yaitu bagian kabar yang sudah kami rangkum dari desain rumah minimalis 2 lantai type 36/72. Denah rumah minimalis 8x15 1 lantai terlihat minimalis barang via.

Top Denah Rumah 1 Lantai Type 36 Pictures Jangan lupa untuk melihat referensi denah rumah minimalis type 36 untuk menentukan rumah seperti apa yang anda inginkan. Berikut artikel mengenai gambar denah rumah minimalis type 36 1 lantai. Kami mendapatkan contoh denah rumah minimalis type 36 sebanyak 20 buah. Denah rumah minimalis 8x15 1 lantai terlihat minimalis barang via. Salah satu model rumah minimalis yang kini gencar dibangun adalah rumah minimalis type 36. Denah rumah type 36 merupakan salah satu denah yang kini banyak digemari dan menjadi trend tersendiri karena ukurannya yang pas, tidak terlalu kecil dan tidak terlalu besar.

Denah Rumah 1 Lantai Type 36 Gambar desain rumah minimalis 1 lantai desain terbaru via rumahminimaliswebs.blogspot.com. Denah rumah type 36 beserta tampak dan potongan yang menawarkan desain rumah umumnya yakni para pengusaha di bidang perumahan. Toh yang penting pintar ngatur desainnya~. Desain rumah type 36 kalau rezekinya baru cukup untuk beli rumah type 36, nggak masalah.

Best Denah Rumah 1 Lantai Type 36 Gallery Pada denah rumah type 36 mungkin tidak banyak ruang yang bisa didapatkan dan ukuran ruangan juga tidak besar. Denah rumah 1 lantai type 36. Gambar denah rumah minimalis type 36 60. Desain rumah type 36rumah sederhana tipe 36 sesuai untuk keluarga kecil dengan satu atau dua anak, atau pasangan yang belum memiliki anak. Gambar denah rumah 2 lantai type 36 yaitu bagian kabar yang sudah kami rangkum dari desain rumah minimalis 2 lantai type 36/72. Jika anda membutuhkan banyak ruang di rumah minimalis itu maka anda bisa melakukan pelebaran denah.

Desain rumah tipe 36 penataan yang tepat untuk kesan luas dan via interiordesign.id.

Denah Rumah 1 Lantai Type 36 Bisa ada musalanya atau dibikin 2 kamar. Jangan lupa untuk melihat referensi denah rumah minimalis type 36 untuk menentukan rumah seperti apa yang anda inginkan. Desain denah rumah type 60 hook idaman zonabuzz via. Desain rumah ini biasanya memiliki dua taman kecil di bagian depan dan belakang.

Get Denah Rumah 1 Lantai Type 36 Images Keunggulan rumah ini selain harga yang lebih terjangkau juga sangat. Tapi jika beberapa gambar denah 1 lantai diatas belum memenuhi espektasi, anda tidak perlu khawatir. Jangan lupa untuk melihat referensi denah rumah minimalis type 36 untuk menentukan rumah seperti apa yang anda inginkan. Denah rumah minimalis 8x15 1 lantai terlihat minimalis barang via. Denah rumah type 36 beserta tampak dan potongan yang menawarkan desain rumah umumnya yakni para pengusaha di bidang perumahan. Rumah minimalis type 36 dengan luas tanah 60 2 lantai.

Denah Rumah 1 Lantai Type 36 Tipe rumah ini mungkin tidak terlalu luas dengan pembagian ruang yang terbatas, namun anda bisa merenovasinya dengan memperluas atau. Gambar denah rumah 2 lantai type 36 yaitu bagian kabar yang sudah kami rangkum dari desain rumah minimalis 2 lantai type 36/72. Denah rumah type 36 beserta tampak dan potongan yang menawarkan desain rumah umumnya yakni para pengusaha di bidang perumahan. Desain rumah ini biasanya memiliki dua taman kecil di bagian depan dan belakang.

Trending Denah Rumah 1 Lantai Type 36 Collections Ini adalah contoh koleksi gambar keren tetang denah rumah minimalis type 36 yang dapat di download. Berikut adalah deskripsi gambar denah rumah dengan tipe 36/72 yang artinya denah tersebut memiliki ukuran rencana bangunan dengan luas bangunan yang direncanakan adalah. Apalagi rumah minimalis type 36 1 lantai yang tergolong sangat sederhana dan mungil ini. Tapi jika beberapa gambar denah 1 lantai diatas belum memenuhi espektasi, anda tidak perlu khawatir. Denah rumah type 36 merupakan salah satu denah yang kini banyak digemari dan menjadi trend tersendiri karena ukurannya yang pas, tidak terlalu kecil dan tidak terlalu besar. Pada denah rumah type 36 mungkin tidak banyak ruang yang bisa didapatkan dan ukuran ruangan juga tidak besar.

Pengaturan pada denah rumah minimalis 2 lantai type 36 ini yaitu pada lantai 1 terdiri dari 2 kamar tidur, 2 kamar mandi, halaman belakang, halaman depan, teras perbedaan dengan denah rumah minimalis 2 lantai type 36 adalah tidak adanya mushola, namun area cuci di lantai dua lebih luas.

Denah Rumah 1 Lantai Type 36 Toh yang penting pintar ngatur desainnya~. Denah dan desain rumah minimalis modern desain. Bisa ada musalanya atau dibikin 2 kamar. Desain rumah tipe 36 penataan yang tepat untuk kesan luas dan via interiordesign.id.

Download Denah Rumah 1 Lantai Type 36 Pictures Hal yang sama dari rumah tipe ini yaitu ukurannya luasnya yang tidak lebih dari 36. Tipe rumah ini mungkin tidak terlalu luas dengan pembagian ruang yang terbatas, namun anda bisa merenovasinya dengan memperluas atau. Sebagian besar pengembang menawarkan rumah type 36 dengan 1 lantai. Berikut artikel mengenai gambar denah rumah minimalis type 36 1 lantai. Denah rumah type 36 dengan 2 kamar tidur dianggap memiliki komposisi yang paling nyaman karena setiap ruangan bisa mendapatkan luas yang cukup. Pada gambar rumah minimalis 1 lantai yang ini, rumah type 36 dibangun dengan 2 kamar tidur yang berjejer diselingi kamar mandi.

Denah Rumah 1 Lantai Type 36 Berikut adalah desain dan denah rumah type 36 2 lantai yang bisa menjadi rekomendasi anda: Ini adalah contoh koleksi gambar keren tetang denah rumah minimalis type 36 yang dapat di download. Hal yang sama dari rumah tipe ini yaitu ukurannya luasnya yang tidak lebih dari 36. Kami mendapatkan contoh denah rumah minimalis type 36 sebanyak 20 buah.

Get Denah Rumah 1 Lantai Type 36 Pics Model rumah tersebut sangat cocok untuk keluarga baru atau keluarga kecil yang masih memiliki satu anak. Denah rumah minimalis tipe 36 bisa berbeda dengan denah rumah tipe 36 lainnya tergantung dari lahan dan desain bangunan yang akan dibuat. Keunggulan rumah ini selain harga yang lebih terjangkau juga sangat. Denah rumah type 36 dengan 2 kamar tidur dianggap memiliki komposisi yang paling nyaman karena setiap ruangan bisa mendapatkan luas yang cukup. Gambar denah rumah type 36 yang simpel panduan desain rumah sederhana via desainrumahyou.blogspot.com. Tapi jika beberapa gambar denah 1 lantai diatas belum memenuhi espektasi, anda tidak perlu khawatir.

Rumah type 36 merupakan type rumah sederhana yang banyak di temukan pada setiap perumahan maupun komplek karena dengan desain ini sangat cocok bagi keluarga kecil atau bagi yang belum berkeluarga.

Denah Rumah 1 Lantai Type 36 Denah dan desain rumah minimalis modern desain. Gambar design denah rumah type 36 hook inspiratif idenahrumahcom via idenahrumah.com. Rumah minimalis type 36 dengan luas tanah 60 2 lantai. Denah rumah type 36 merupakan salah satu denah yang kini banyak digemari dan menjadi trend tersendiri karena ukurannya yang pas, tidak terlalu kecil dan tidak terlalu besar.

Download Denah Rumah 1 Lantai Type 36 Pics Bisa ada musalanya atau dibikin 2 kamar. Ada banyak sekali inspirasi denah rumah type 36 2 lantai yang bisa kamu pilih untuk mewujudkan rumah impian. Yuk cek inspirasi denah rumah type 36 disini. Denah rumah berbagai type, 1 lantai dan 2 lantai. Dalam pembagian runag pada denah rumah minimalis type 36 biasanya terdiri dari 2 kamar tidur, ruang tamu, ruang makan menyatu dengan dapur dan 1 jika anda ingin memiliki banyak ruang untuk memaksimalkan keterbatasan, anda bisa dengan membuat rumah minimalis 2 lantai type 36. Jangan lupa untuk melihat referensi denah rumah minimalis type 36 untuk menentukan rumah seperti apa yang anda inginkan.

Denah Rumah 1 Lantai Type 36 Denah rumah minimalis type 36 untuk 1 lantai tanpa garasi. Denah rumah berbagai type, 1 lantai dan 2 lantai. Denah rumah minimalis tipe 36 bisa berbeda dengan denah rumah tipe 36 lainnya tergantung dari lahan dan desain bangunan yang akan dibuat. Info ini kami sengaja siapkan untuk anda yang membutuhkan contoh rumah minimalis simpel.

Top Denah Rumah 1 Lantai Type 36 Images Kami mendapatkan contoh denah rumah minimalis type 36 sebanyak 20 buah. Denah rumah berbagai type, 1 lantai dan 2 lantai. Desain rumah 1 lantai untuk rumah minimalis harus memperhatikan segi eksterior dan interior. Alasannya beragam, mulai dari harganya yang terjangkau hingga perawatannya yang mudah. Desain rumah type 36rumah sederhana tipe 36 sesuai untuk keluarga kecil dengan satu atau dua anak, atau pasangan yang belum memiliki anak. Pada denah rumah type 36 mungkin tidak banyak ruang yang bisa didapatkan dan ukuran ruangan juga tidak besar.

Kami mengumpulkan foto cantk ini dari internet dan memilih yang terbaik untuk anda.

Denah Rumah 1 Lantai Type 36 Pada denah rumah type 36 mungkin tidak banyak ruang yang bisa didapatkan dan ukuran ruangan juga tidak besar. Denah rumah type 36 beserta tampak dan potongan yang menawarkan desain rumah umumnya yakni para pengusaha di bidang perumahan. Gambar desain rumah minimalis 1 lantai desain terbaru via rumahminimaliswebs.blogspot.com. Jangan lupa untuk melihat referensi denah rumah minimalis type 36 untuk menentukan rumah seperti apa yang anda inginkan. Gambar denah rumah minimalis type 36 60. Desain rumah ini biasanya memiliki dua taman kecil di bagian depan dan belakang.